嵌套头部
赤峰市人民政府
登录/注册
用户中心
蒙文版
无障碍浏览
搜本站
搜本站
搜平台
网站首页
政务公开
办事服务
互动交流
走进翁牛特
网站首页
政务公开
办事服务
互动交流
走进翁牛特
首页
>
信息公开
>
政府信息公开
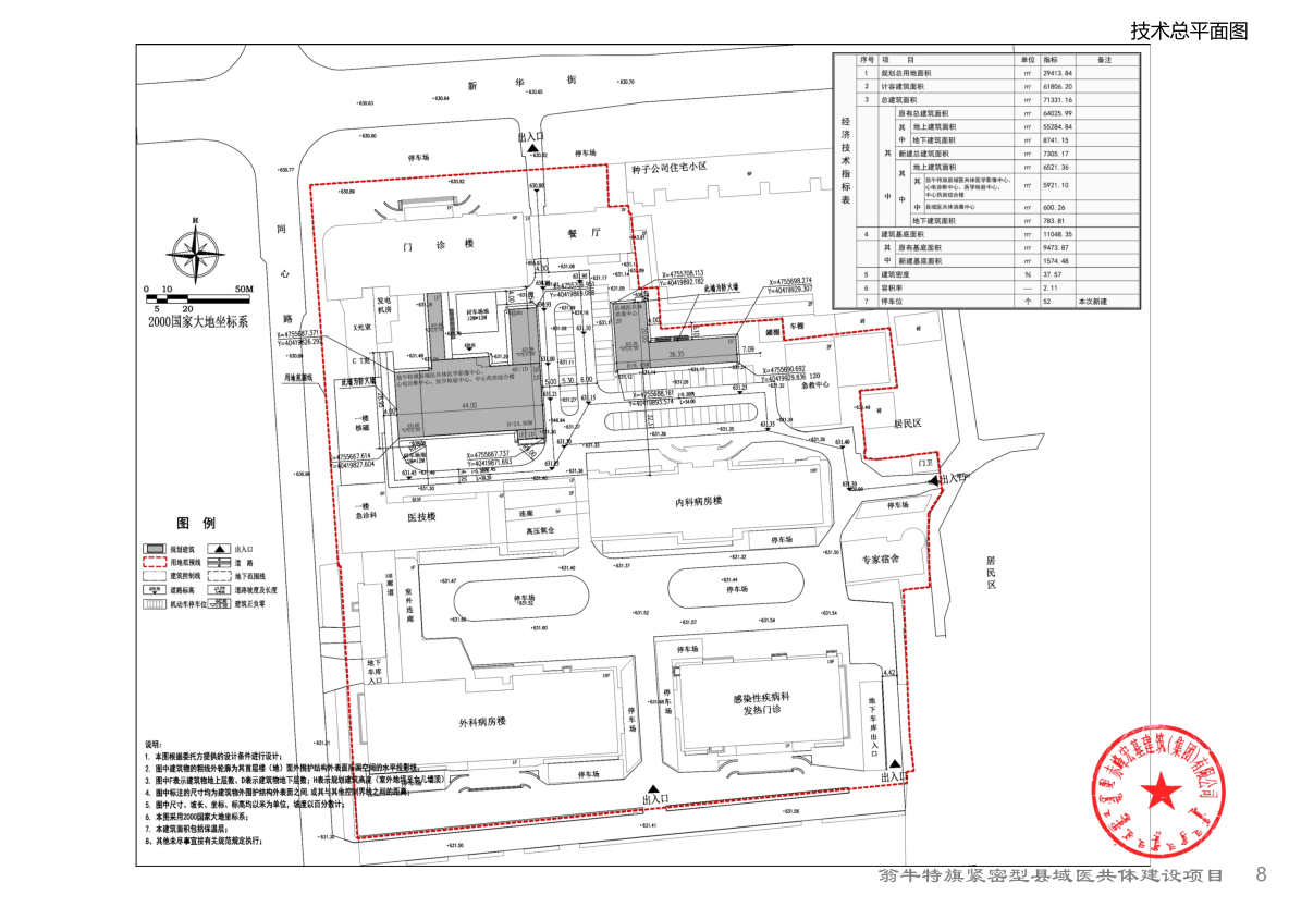
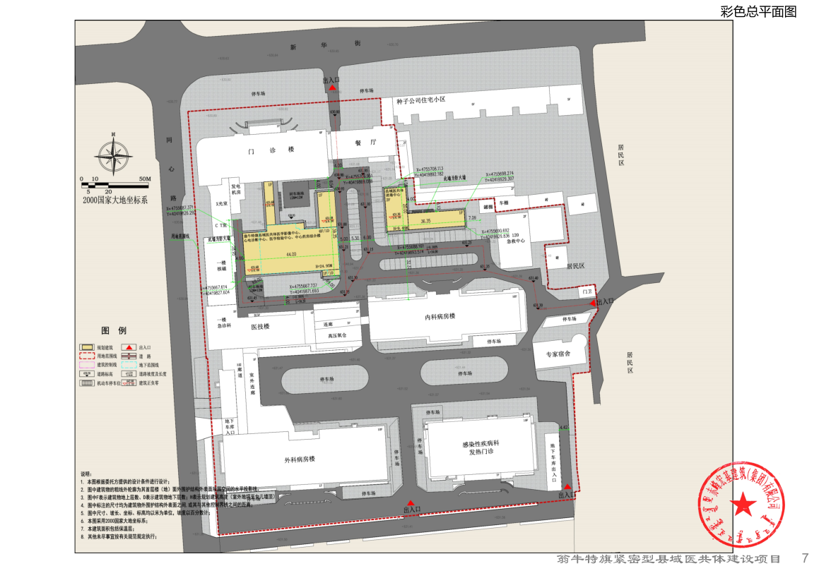
翁牛特旗自然资源局公告 (2026) 1号
来源:翁牛特旗自然资源局
发布时间:2026-03-16 11:39:56
字号:
大
中
小
打印
保存
分享:
X
友情链接
丨
国家各部委
中国政府网
外交部
发展改革委
教育部
科技部
工信部
国家民委
公安部
监察委
民政部
司法部
财政部
人社部
自然资源部
生态环境部
住建部
交通运输部
水利部
农业农村部
商务部
文化和旅游部
卫生健康委员会
人民银行
审计署
各省市网站
北京
天津
河北
山西
内蒙古
辽宁
吉林
黑龙江
上海
江苏
浙江
安徽
福建
江西
山东
河南
湖北
湖南
广东
广西
海南
重庆
四川
贵州
云南
西藏
陕西
甘肃
青海
宁夏
新疆
香港
澳门
区内盟市网站
内蒙古政府
呼和浩特市
包头市
呼伦贝尔市
兴安盟
通辽市
赤峰市
锡林郭勒盟
乌兰察布市
鄂尔多斯市
巴彦淖尔市
乌海市
阿拉善盟
满洲里市
二连浩特市
市内旗县区网站
红山区
元宝山区
阿鲁科尔沁旗
巴林左旗
巴林右旗
林西县
克什克腾旗
翁牛特旗
敖汉旗
喀喇沁旗
宁城县
网站地图
法律声明
主办:翁牛特旗人民政府办公室
承办:翁牛特旗行政审批政务服务与数据管理局
技术电话:0476-6360788(仅受理网站建设维护相关事宜)
蒙ICP备14003692号-1
政府网站标识码:1504260022
公安机关备案标识码:15042602000100