来源:翁牛特旗自然资源局
发布时间:2026-01-18 09:53:39
字号:大中小
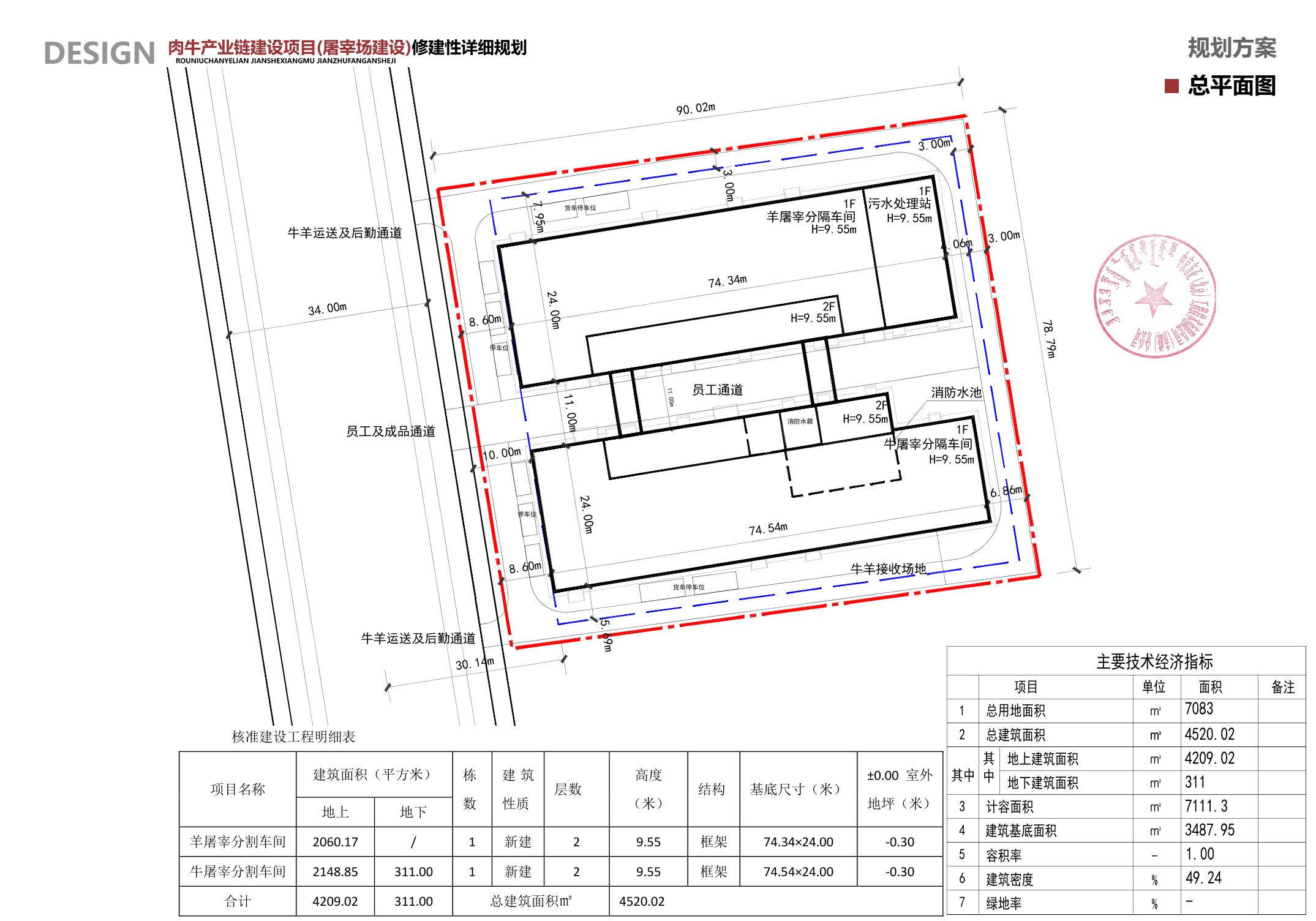
建设单位:翁牛特旗富兴投资管理有限公司
建设项目名称:肉牛产业链建设项目
建设位置:翁牛特旗乌丹镇工四街南、海拉苏大街东
总建筑面积:4520.02平方米
批准日期:2025年9月30日
公布期限:从公布之日起至规划验收结束为止